400-003-8066

香蕉视频色版案例分析

您所在的位置: 首页 > 资讯频道 > 技术支持 > 技术文章 > 首都香蕉视频91APP下载馆场地扩声系统改造方案及实施要点

首都香蕉视频91APP下载馆场地扩声系统改造方案及实施要点

来源:ZOBO香蕉视频色版 发布日期 2023-03-19 浏览:

  2022年3月15日,北京香蕉视频色版电子技术有限公司(以下简称ZOBO香蕉视频色版 )收到一封来自北京冬奥组技术部的感谢信。信中表示,ZOBO香蕉视频色版提供的会议系统在和冬残奥会组织委员会上发挥了关键作用,为北京的顺利开展提供了强有力技术支持。

香蕉视频91APP下载馆场地扩声系统改造方案及实施要点

  这份感谢,源自ZOBO 香蕉视频色版团队对工作的一份执着,秉承为国争光的决心,着力创新实践,参与到北京的服务之中。从2008年北京奥运会,再到2022年,ZOBO 香蕉视频色版团队为再次服务奥运会感到荣幸和自豪!此次不仅得到“北京2022年和冬残奥会组织委员会”的充分肯定,也与北京结下了一段“冰雪奇缘”。

香蕉视频91APP下载馆场地扩声系统改造方案及实施要点


  首都香蕉视频91APP下载馆作为2022年北京冬奥运会冰上项目短道速滑、花样滑冰的主赛场,为满足赛事的需求, 在现有设施的基础上进行了改扩建,涉及分赛场、运动员公寓、滑冰馆、香蕉视频91APP下载馆、综合训练馆共五大场馆,总建筑面积140254 ㎡。其中,包括香蕉视频91APP下载馆音视频系统 、香蕉视频91APP下载工艺系统进行改造。下面就香蕉视频91APP下载馆场地扩声系统(以下简称“场地扩声系统”)部分的改造方案及实施要点进行解析。

  一、香蕉视频91APP下载馆概况

  2022年北京冬奥运会的主要比赛用馆首都香蕉视频91APP下载馆,其建筑面积45 406 ㎡,其中,地下一层为38 842 ㎡,地上四、六层6 564 ㎡,建筑高度28.16 m。一层的场地内设有31 m×61 m具有多功能转换的标准冰场,大顶铝板造型至冰场的高度为20.6 m,观众席区设有15 400个座位,如图1所示。

1香蕉视频91APP下载馆场地扩声系统改造方案及实施要点

图1 香蕉视频91APP下载馆内景

  香蕉视频91APP下载馆的改造项目要建立香蕉视频91APP下载建筑智能化的专用设施系统,主要包括:大屏幕显示及控制、场地扩声系统、广播电视转播布线、标准时钟、升旗控制、比赛设备集成系统、竞赛信息实时发布系统。

  二、场地扩声系统的设计要点及难点

  场地扩声系统作为覆盖区域为观众席区以及比赛场地(FOB)的固定安装扩声系统,主要满足比赛所需的语言节目并兼顾音乐播放的扩声要求。

  1、设计要点

  场地扩声系统的设计及方案的实施依据JGJ31—2003《香蕉视频91APP下载建筑设计规范》、JGJT179—2009《香蕉视频91APP下载建筑智能化系统工程技术规程》、JGJ354—2014《香蕉视频91APP下载建筑电气设计规范》、GB/T28049—2011《厅堂、香蕉视频91APP下载场馆扩声系统设计规范》、JGJ/T131—2012《香蕉视频91APP下载场馆声学设计及测量规程》。

  在如此体量的场馆内设计场地扩声系统,需要把握以下几个要点。

  场地扩声系统必须有足够大的声功率,并且要达到足够高的语言清晰度,以保证观众能听清晰赛事进程及解说的声音。同时,还要考虑声像定位以准确重现赛场的动态位置。

  场地使用传声器时,要特别注意采取有效措施避免声反馈的问题,避免影响比赛的正常进行。

  系统要有冗余的数字网络接口,可以用于连接比赛场地区临时扩展的移动式的扩声系统。

  为满足奥运会比赛期间的赛事直播、转播的需要,系统应具备可调整覆盖电视转播评论员区域的声压级,或临时关闭该区域的扩声设备,以保证该区域声压级可控,或没有扩声的直达声。

  系统可以与其他香蕉视频91APP下载工艺系统如竞赛信息发布系统、现场大屏系统、比赛设备集成管理系统等联动。

  2、设计难点

  对于整体建筑结构,由于不能改变原有的结构,特别是顶棚的整体承载负荷,与安装扬声器系统的需求相距甚远,因此,要对扬声器系统的吊挂有专门的设计。

  建筑声学环境方面,香蕉视频91APP下载馆的吸声不足,混响时间偏长,因此,希望通过扬声器的布置解决这一问题。

  比赛期间,短道速滑及花样滑冰两项赛事对于扩声系统有着不同的需求,如表1所示,并且转换时间短,只有半天的时间。

  对于现场观看表演和电视直播,视频系统、照明系统要比场地扩声系统更加重要,因此,在项目的实际和实施中,视频和照明系统要优先考虑。

1.2香蕉视频91APP下载馆场地扩声系统改造方案及实施要点

  3、系统方案

  扩声系统的总体改造方案,系统的音频控制、传输通过Dante网络构建数字加模拟的混合网,场馆内所有音频信号均汇聚到音频控制机房进行分发。数字调音台同样采用一主一备,主调音台可搬至场内进行现场调控,并在主席台区预留音频接口箱,可接入有线传声器、无线传声器系统。系统使用时,需要根据不同赛事的使用场景对数字调音台以及功率放大器进行预设。系统基本框架如图2所示。

2香蕉视频91APP下载馆场地扩声系统改造方案及实施要点

图2 场地扩声系统原理图

  对于像奥运会这样重要的赛事,系统的安全性与可靠性极为重要。除注重选用可靠性高的设备外,对于信号传输主干网采用光纤传输,部分采用模拟线缆,以满足一些特殊的使用场景。同时,设置点对点的直通路径进行传输,如功能机房与功能机房之间、现场不同区域之间、现场与功能机房之间。这种传输路径稳定、延时小,降低数据传输中的丢包问题,故障排查简单。

  系统的配电,根据奥运赛事的需求,均采用双路市电+ATS+UPS,相关电气设备安装于四层音频控制室。现有供电方式在市电闪络时不会对扩声系统造成影响;ATS开关容量160 A,运行方式为互为备用;UPS电源柜就近安装于配电柜旁,输出65 kW,在线运行,可带柜内全部负荷持续供电30 min。为了保障赛时安全运行,在赛前做好配电柜内所有电气设备的隐患排查工作,留好备品备件,赛时安排专人对配电柜进行看护。

  对于声场的设计,扬声器系统既考虑主席台区的覆盖,又要考虑整个观众区的覆盖;在扬声器选型上,要符合重量要轻、体积小、声压大等性能,以满足承重、避免建声缺陷、提高语言清晰度、避让视频照明等其他设备等一系列的相关要求。通过仿真软件NS-1模拟设计,确定扬声器数量、吊挂高度、投射角度等,以达到香蕉视频91APP下载建筑设计规范一级指标,声压级为105 dB,语音清晰度指数不小于0.5,声场模拟点位如图3所示。不同的区域根据实际的面积、纵深覆盖需求,对线阵列扬声器的数量、分频、吊挂角度与高度进行配置。主扩声扬声器系统采用14组双12英寸三分频无源全频线阵列扬声器,吊挂覆盖整个观众区。其中,北侧方向共分8组,每组根据覆盖区域分别由2~8只扬声器单元组成;东西方向各1组,每组4只扬声器单元;南侧方向共分4组,每组根据覆盖区域分别由4~8只扬声器单元组成。扬声器布置平面图如图4所示。以评论员席以及播报席区域为例,由于区域观众席一排至后一排的高差为15 m,如图5所示,因此使用了2组线阵列扬声器进行覆盖,分别使用了4只、7只扬声器单元,其吊挂角度、高度分别为-7°、20.5 m,-2°、17.9 m,如图6所示。

3香蕉视频91APP下载馆场地扩声系统改造方案及实施要点

图3 声场模拟点位图

4香蕉视频91APP下载馆场地扩声系统改造方案及实施要点

图4 场馆扬声器系统实际布置平面图

5香蕉视频91APP下载馆场地扩声系统改造方案及实施要点

图5 评论员席及播报席位区域图

6香蕉视频91APP下载馆场地扩声系统改造方案及实施要点

图6 覆盖评论员席及播报席位区域两组线阵列扬声器的吊挂

  另外,在香蕉视频91APP下载工艺系统中,采用了比赛设备集成管理系统,通过比赛设备集成管理平台,可将场地扩声系统、大屏显示系统、赛事运营系统、场地灯光系统以及场地投影系统进行集成互联,通过将各系统集成联动,满足不同使用场景下的功能需求,增加了系统使用运行的方便性、整体性。

  三、系统实施的要点

  系统的设计和实施受场地装修的限制,既要照顾整个场馆美观,又要满足场馆内功能的使用要求。因此,对于系统方案的实施,随时与相关方沟通,不断进行调整优化。

  1、扬声器的吊挂

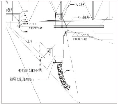
  在扬声器系统吊挂过程中,由于首都香蕉视频91APP下载馆保留了原有大顶球型网架结构、马道,在球型网架的结构下还有铝板造型结构以及龙骨,而扬声器系统的吊挂点位于大厅顶层铝板之上,需要穿过结构下悬杆、铝板和铝板固定龙骨层,避开灯光线路以及马道,并且每一组线阵列扬声器的安装位置不相同,需要定位,以满足现场覆盖的范围及角度。基于这种情况,在进行了实地勘察测量后,经各方讨论,选择了单独设计安装钢结构吊点的吊挂方式。根据现场不同的位置,定制吊挂扬声器的钢架,如图7、图8、图9所示,吊挂高度可以在钢架上调整。这一结构不仅可以避开场地照明光路等,还可以应对施工过程中马道等一些设施的更改。

7香蕉视频91APP下载馆场地扩声系统改造方案及实施要点

图7 吊挂扬声器的钢架

8香蕉视频91APP下载馆场地扩声系统改造方案及实施要点

图8 吊挂扬声器钢架的实景

9香蕉视频91APP下载馆场地扩声系统改造方案及实施要点

图9 扬声器的吊装

  2、投影幕布对扬声器系统的影响

  比赛场地上空设置有巨大的投影幕布,面积与比赛场地近乎一样。为此,对场地扩声系统提出了多种方案。其中,一种方案是调整扬声器的覆盖角度,以避免因投影幕布反射形成的回声,但受整体环境所限,难以实现。另一种方案是考虑采用透声幕布,扬声器吊挂在透声幕布上方,但会影响投影效果。在实施中,采用透声幕布,经过多方沟通,方案几经调整,在安装位置与投影幕布之间取得平衡,采取分段式幕布加扬声器吊挂调整,将扬声器吊挂与各幕布之间,并选用8只小尺寸、高声压的点声源扬声器P12,既不会影响投影效果,也可满足声场覆盖,达到设计指标。

  3、音频线缆的敷设

  对于音频线缆的敷设,由于首都香蕉视频91APP下载馆初修建于1968年,管线桥架设计相对复杂繁琐,场馆1层至4层垂直桥架没有完全贯通,4层的水平桥架也没有联通,大大增加了音视频传输线缆敷设的难度,同时大大增加了音频线缆的敷设长度。因此,在现场的音视频插座箱与四层音控室之间,采用光缆及中继设备进行传输,包括调音台接口箱、交换机、音频光端机等。通过数模结合的传输方式,解决了信号传输线缆过长的问题,并大大增加了信号传输的可靠性与安全性,满足了奥运赛事期间不同赛事的需求,2022年北京冬季奥运会组委会技术组可根据不同使用场景进行切换。

  四、声学测试结果

  施工完毕后,进行了现场实测,测点如图10所示。经现场测试,扩声系统声压级可基本达到设计值,其他测量结果见图11、表2—表4。测试结果反映,该项目达到设计目标及行业相关标准指标。

10香蕉视频91APP下载馆场地扩声系统改造方案及实施要点

图10 测点位置图

11香蕉视频91APP下载馆场地扩声系统改造方案及实施要点

图11 传输频率特性

12香蕉视频91APP下载馆场地扩声系统改造方案及实施要点

  首都香蕉视频91APP下载馆改造项目的方案设计与实施,体现了简约而不简单的理念,具有可靠性、实用性,特别使在前端固定设备的布置、安装方面,不断深化设计;对于控制处理部分的设计,充分满足前端固定安装设备至机房控制操作设备之间的传输、处理的需求,尽量简化机房控制设备的操作繁琐程度,采取集成化的控制方案。系统调试、测试后,运行稳定,清晰度得到用户的认可,并通过验收。经过测试赛的应用,证明这项设计完全达到要求。

选自《演艺科技》2021年第7期 余佳佳《浅析首都香蕉视频91APP下载馆场地扩声系统改造方案及实施要点》,转载请标注:演艺科技传媒。更多详细内容请参阅《演艺科技》。(本文仅用于行业交流学习,并不用于商业用途。文中观点为作者独立观点。如不慎侵涉第三方权益,请与香蕉视频色版联络,香蕉视频色版将删除处理。)

网站地图